Français
Català
English
Español
Français
Nous
Servicios
Annonce immobilière
Savoir plus
On trobar-nos
Contact
Français
Català
English
Español
Français
Liste
Fiche du bien
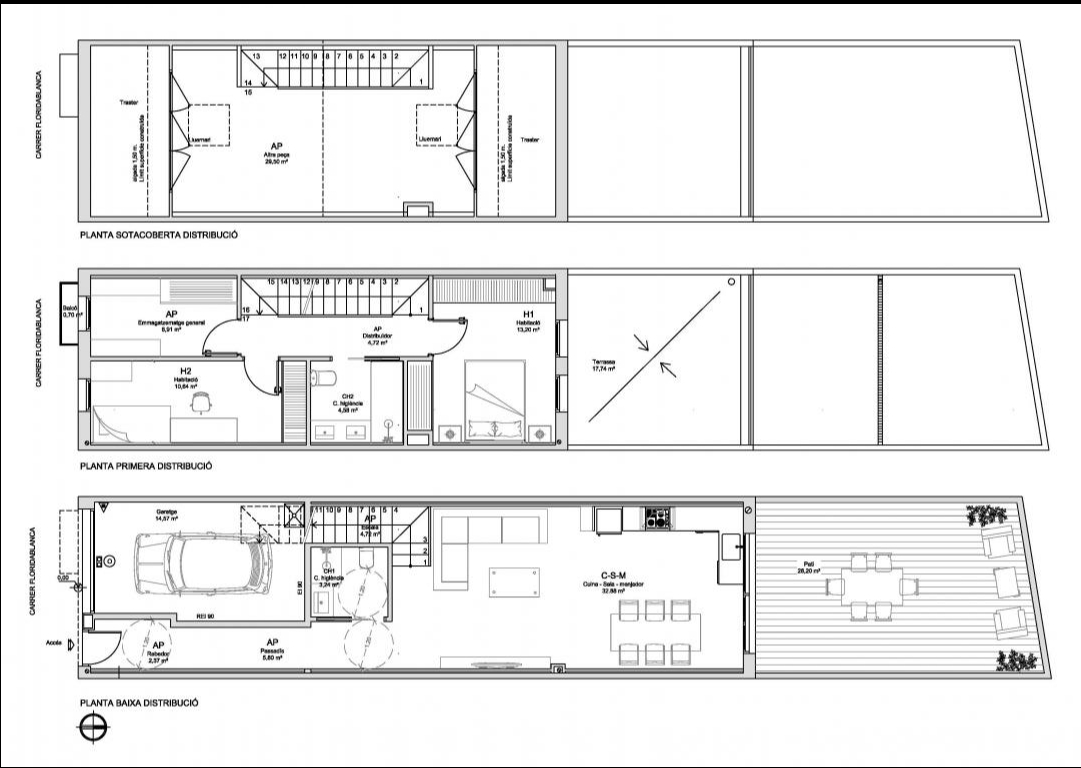
Étage de 104m
2
, à Rubí, Barcelona
VENTE
8191, Rubí, Barcelona
149.000€
104m
2
| 1.433€/m
2
vente
Description
Ref. 2580 - Prix: 149.000€